
Surfaces de bureaux à louer, idéalement situées rue Alsace Lorraine, en hyper centre de Toulouse
KEOPS TOULOUSE propose à la location des bureaux de bon standing idéalement situés au coeur du centre-ville de Toulouse. Parfaitement adaptés pour les professionnels et les entreprises à la recherche d'un espace de travail fonctionnel et prestigieux, ces bureaux offrent une adresse de choix au sein d'un quartier dynamique et bien desservi.
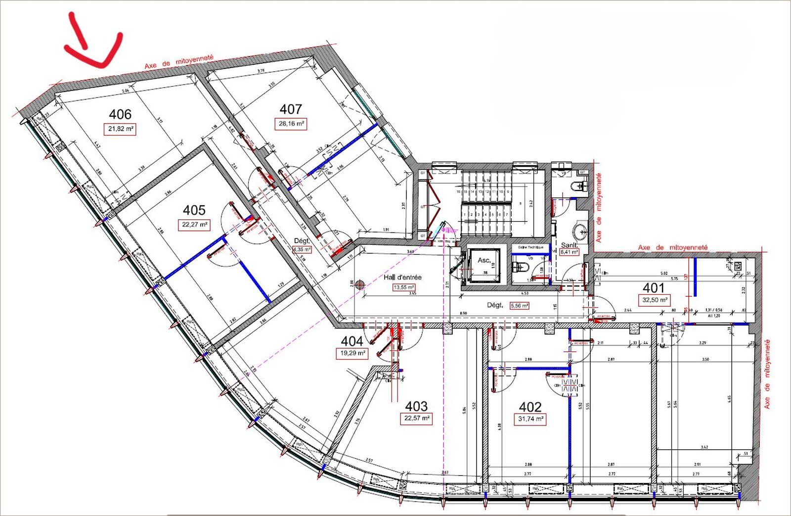
Surface disponible au 4ème étage Aménagement : plateaux cloisonnés en fonction des lots Système de climatisation réversible Câblage informatique (fibre optique)
Centre ville de Toulouse Métro : ligne B "Jeanne d'Arc" Bus : nombreuses lignes Gare : 5 min